Выберите размер:

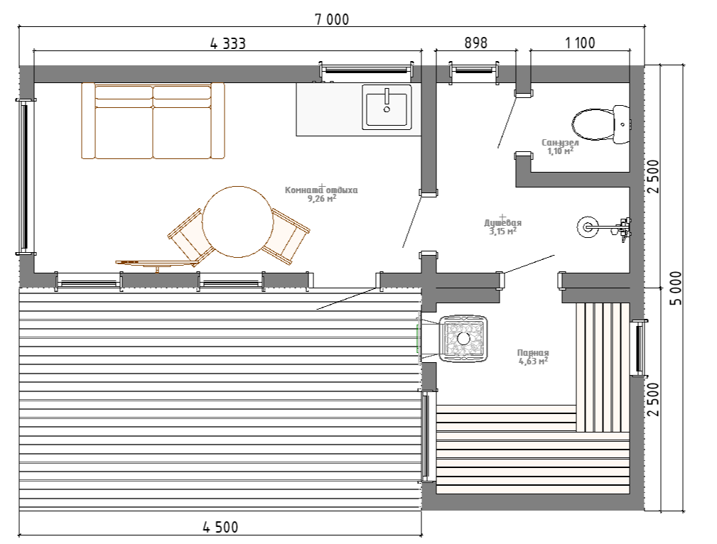
Баня «Г-образная» 5 х 7

Базовая комплектация:

Силовой каркасДоска камерной сушки, обработанная огнебиозащитой, утепление 100 мм. Снаружи ветрозащита, внутри пароизоляция и жароотражающая фольга для бань и саун.

Внутренняя отделкаКомната отдыха вагонка штиль Сорт АБ, помывочная вагонка штиль Сорт АБ, парная Евровагонка Осина Сорт Экстра, термодоска, полки термодоска.

ПолыМонтируем пол из сухой шпунтованной доски 28 мм.

ДвериВходная дверь стеклопакет двух камерный с замком, межсекционные двери стеклянные.

ОкнаСтеклопакеты заводского качества двухкамерные панорамные.

ЭлектропроводкаВходит в стоимость. Включает светодиодные светильники в комнате отдыха и помывочной, в парной термостойкий керамический светильник, двойная розетка.

ПечьПечь на выбор. Дымоход – сэндвич, оголовок с ветрозащитой.

Внешняя отделкаИмитация бруса хвоя сорт АБ ширина 140 мм, толщина 16 мм, профлист RAL 7024, 9003, реечный фасад.

КровляМатовый профилированный лист МП20. Цвет на выбор заказчика
  • Длина
    7 м
  • Ширина
    5 м
18000000
Купить
Выбор планировки
ПОЛУЧИТЬ КОНСУЛЬТАЦИЮ
Наша компания клиентоориентированная – можно заказать как реализацию индивидуального проекта, так и изменение уже существующего стандартного решения из каталога
background
Craftum Создано на конструкторе сайтов Craftum