Выберите размер:

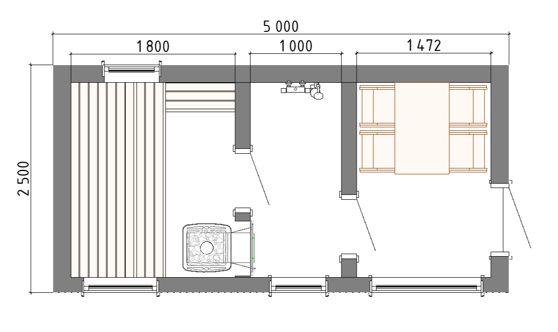
Баня «Одномодульная» 2,4 х 5

Базовая комплектация:

Силовой каркасДоска камерной сушки, обработанная огнебиозащитой, утепление 100 мм. Снаружи ветрозащита, внутри пароизоляция и жароотражающая фольга для бань и саун.

Внутренняя отделкаКомната отдыха имитация бруса Сорт АБ, помывочная и парная Евровагонка Липа Сорт Экстра, полки из термо-древесины.

ПолыМонтируем пол из сухой шпунтованной доски 28 мм. В парной и душевой проливной пол со сливным трапом.

ДвериВходная дверь стеклопакет двух камерный с замком, межсекционные двери стеклянные.

ОкнаСтеклопакеты заводского качества двухкамерные панорамные.

ЭлектропроводкаВходит в стоимость. Включает светодиодные светильники в комнате отдыха и помывочной, в парной термостойкий керамический светильник, три двойные розетки.

ПечьПечь на выбор. Дымоход – сэндвич, оголовок с ветрозащитой.

Внешняя отделкаПрофлист RAL 7024, 9003, реечный фасад из термо-древесины.

КровляМатовый профилированный лист МП20. Цвет на выбор заказчика.
  • Длина
    5 м
  • Ширина
    2,4 м
9500000
Купить
Выбор планировки
ПОЛУЧИТЬ КОНСУЛЬТАЦИЮ
Наша компания клиентоориентированная – можно заказать как реализацию индивидуального проекта, так и изменение уже существующего стандартного решения из каталога
background
Craftum Создано на конструкторе сайтов Craftum