Выберите размер:

2,4 х 7

Цена услуги ₽

    Выбрать

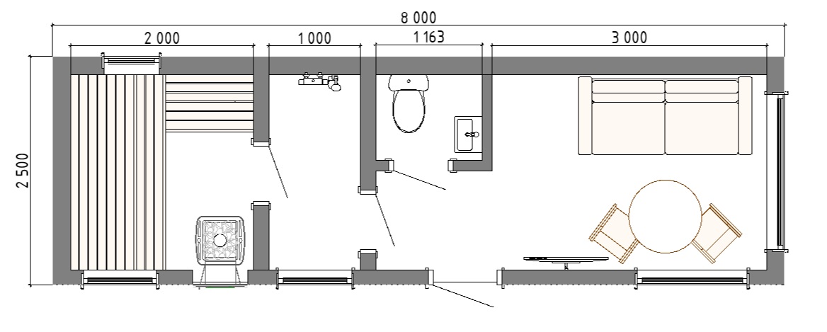
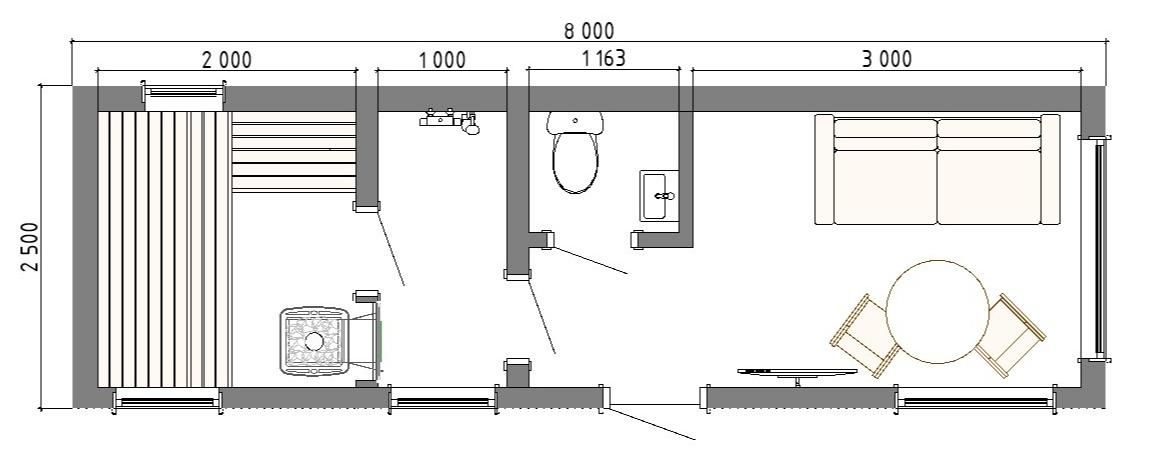
    Баня «Одномодульная» 2,4 х 8

    Базовая комплектация:

    Силовой каркасДоска камерной сушки, обработанная огнебиозащитой, утепление 100 мм. Снаружи ветрозащита, внутри пароизоляция и жароотражающая фольга для бань и саун.

    Внутренняя отделкаКомната отдыха имитация бруса Сорт АБ, помывочная и парная Евровагонка Липа Сорт Экстра, полки из термо-древесины.

    ПолыМонтируем пол из сухой шпунтованной доски 28 мм. В парной и душевой проливной пол со сливным трапом.

    ДвериВходная дверь стеклопакет двух камерный с замком, межсекционные двери стеклянные.

    ОкнаСтеклопакеты заводского качества двухкамерные панорамные.

    ЭлектропроводкаВходит в стоимость. Включает светодиодные светильники в комнате отдыха и помывочной, в парной термостойкий керамический светильник, три двойные розетки.

    ПечьПечь на выбор. Дымоход – сэндвич, оголовок с ветрозащитой.

    Внешняя отделкаПрофлист RAL 7024, 9003, реечный фасад из термо-древесины.

    КровляМатовый профилированный лист МП20. Цвет на выбор заказчика.
    • Длина
      8 м
    • Ширина
      2,4 м
    16000000
    Купить
    Выбор планировки
    ПОЛУЧИТЬ КОНСУЛЬТАЦИЮ
    Наша компания клиентоориентированная – можно заказать как реализацию индивидуального проекта, так и изменение уже существующего стандартного решения из каталога
    background
    Craftum Создано на конструкторе сайтов Craftum